Residential Profile
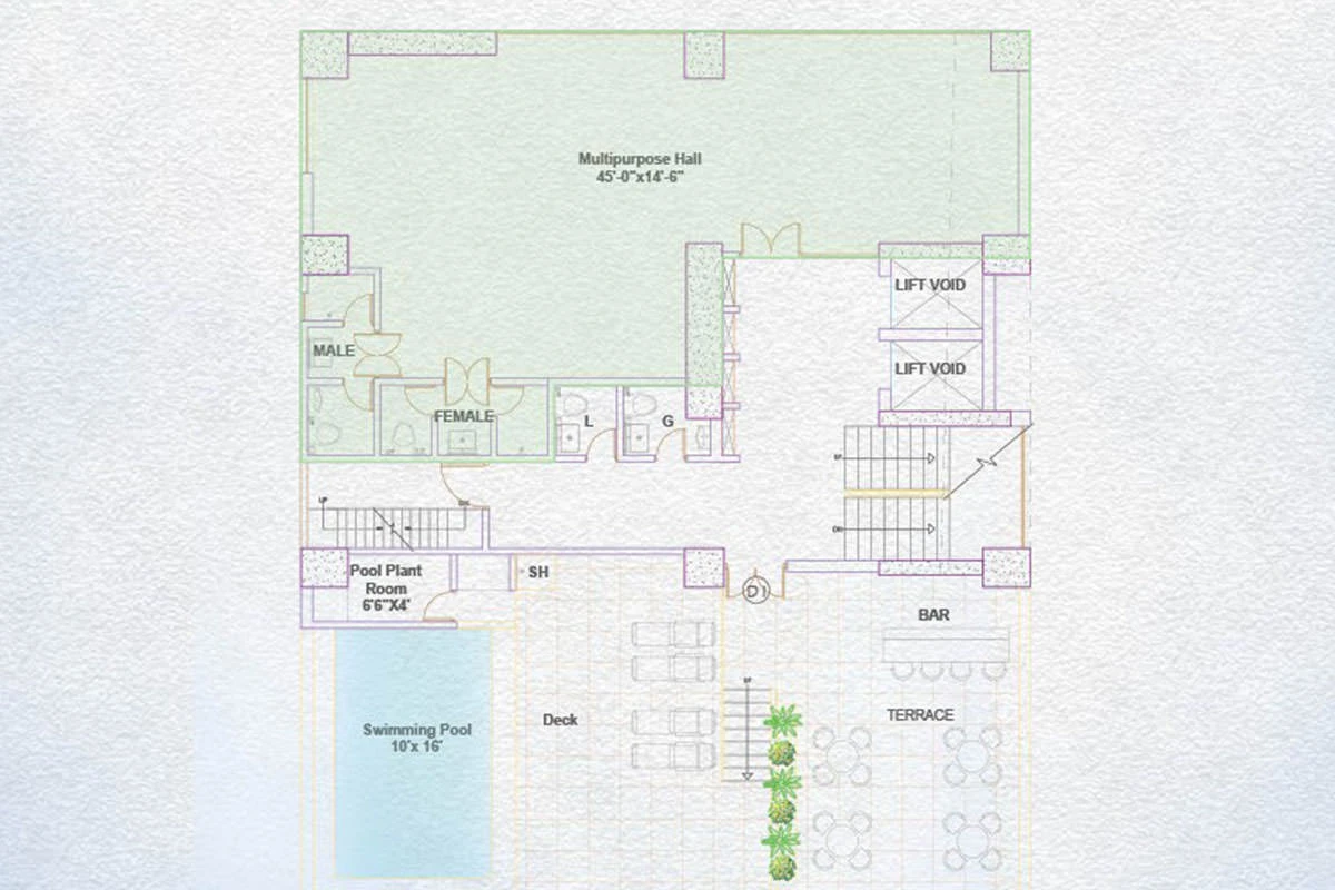
Elegant Tower is a modern mixed-use development located in the prime area of Soalteemode, Kathmandu. The project features 24 well-designed residential units, offering a choice of 1 BHK, 2 BHK, 3 BHK units, and an exclusive penthouse on the 8th floor. The ground floor includes a commercial unit, while residents are welcomed through a dedicated reception area. From the 1st floor onwards, the tower is entirely residential. The 9th floor is dedicated to lifestyle amenities, featuring a swimming pool and a bar area.
Floor Plan
Site Plan
Note: Click to zoom image
Ground Floor Plan
Note: Click to zoom image
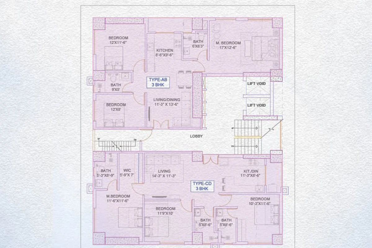
3 Floor Plan
Note: Click to zoom image
4 To 6 Floor Plan
Note: Click to zoom image
7 Floor Plan
Note: Click to zoom image
8 Floor Plan
Note: Click to zoom image
9 Floor Plan
Note: Click to zoom image
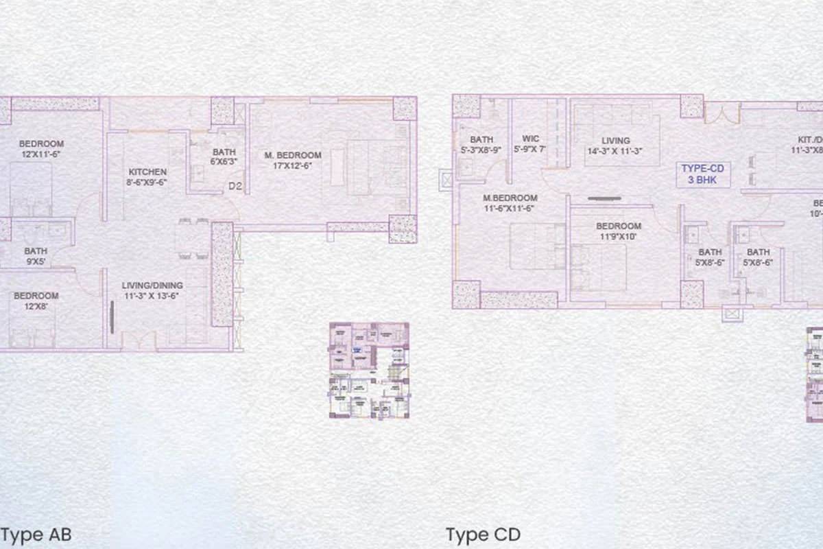
Type A and B
Type C
Note: Click to zoom image
Type D
Note: Click to zoom image
Type AB and Type CD
Note: Click to zoom image
Visual Experience